The perimeter of the polygon shown is

Answer Choices
A. 14
B. 20
C. 28
D. 48
E. cannot be determined from the Information given
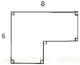
The perimeter of the polygon shown is

Answer Choices
A. 14
B. 20
C. 28
D. 48
E. cannot be determined from the Information given